Objektart
Adresse
Objektdaten
Informationen
Ausstattung
Details
Bei diesem Wohn- und Geschäftshaus handelt es sich um ein gepflegtes Gebäude in attraktiver Lage nahe der Zwickauer Innenstadt.
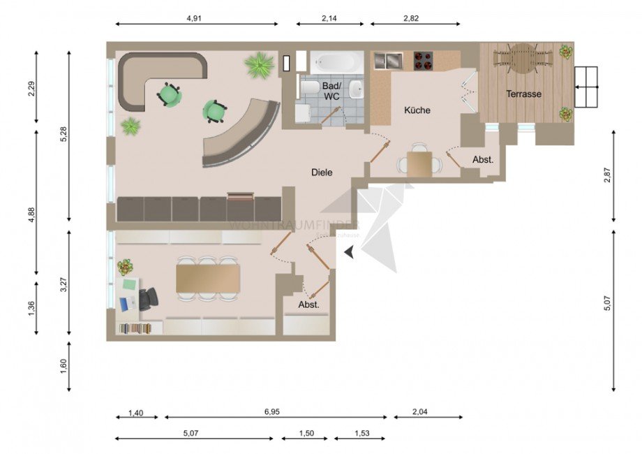
Die durchdachte Raumaufteilung überzeugt mit zwei großzügigen Büroräumen, die dank ihrer Größe und Helligkeit vielfältige Nutzungsmöglichkeiten eröffnen, ob als klassisches Büro, Praxis oder kreativer Arbeitsbereich.
Ein besonderes Highlight ist die separate Küche mit Fenster und angrenzendem Abstellraum. Von hier aus gelangen Sie direkt auf die kleine Terrasse, die sich hervorragend für kurze Pausen im Freien eignet.
Das hell geflieste Badezimmer ist mit einer Badewanne ausgestattet und verfügt zudem über einen Waschmaschinenanschluss.
Die angebotene 2-Raum-Gewerbefläche mit einer Größe von ca. 73 m² befindet sich im Erdgeschoss des Hauses und eignet sich ideal für Büro- oder Praxisnutzung.
Ihre Vorteile auf einen Blick:
+ Zwei großzügige und helle Büroräume (ohne Möbel)
+ Moderner Laminatboden in den Arbeitsbereichen
+ Funktionale Küche mit zusätzlichem Stauraum
+ EBK ablösbar
+ einladender, offener Flur mit Abstellraum
+ Terrasse für entspannte Pausen
+ Badezimmer mit Badewanne
+ Außenstellplatz im Hof optional anmietbar
+ Keller
Diese Gewerbefläche bietet Ihnen eine attraktive Kombination aus zentraler Lage, praktischer Ausstattung und angenehmem Arbeitsambiente
Alle Angaben wurden nach bestem Wissen gemacht. Irrtümer und Zwischenvermietung vorbehalten. Dieses Exposé ist eine Vorinformation, als Rechtsgrundlage gilt allein der abgeschlossene Mietvertrag. Dem Verbraucher steht bei außerhalb von Geschäftsräumen geschlossenen Verträgen und bei Fernabsatzverträgen ein Widerrufsrecht gemäß § 355 BGB zu. Bitte beachten Sie unsere Widerrufsbelehrung. Diese finden Sie unter www.wohntraumfinder.com.
Mit rund 90.000 Einwohnern ist Zwickau die viertgrößte Stadt Sachsens. Die Zwickauer sind stolz auf ihre 900-jährige Geschichte.
Die "kleine Großstadt" ist bekannt für ihre liebevoll sanierte historische Altstadt, in der Sie stressfrei shoppen, die Behaglichkeit rustikaler bis luxuriöser Gastronomie genießen oder bei einem kühlen Getränk einem Open-Air-Konzert lauschen können.
Kulturelles Zwickau:
Das Geburtshaus Robert Schumanns ist heute ein Museum und die automobile
Geschichte Zwickaus kann man im August Horch Museum anschaulich erleben.
In der Stadthalle Zwickau, im Konzert- und Ballhaus "Neue Welt" oder zum Beispiel auch auf der Freilichtbühne Zwickau erleben Sie das ganze Jahr über Konzerte, aufregende Musicals, Kabaretts und vieles mehr.
Spazieren Sie durch den Schwanenteichpark und das Muldeparadies, radeln Sie auf dem Muldendamm, entlang der Zwickauer Mulde, durch alte Wälder und satte Wiesen oder schippern Sie gemütlich auf dem Schwanenteich.
Energieausweis (Verbrauchsausweis)
100,10 kWh / (m²*a) Energieverbrauchskennwert
100,10 kWh / (m²*a) Energieverbrauchskennwert
100,10 kWh / (m²*a) Energieverbrauchskennwert
Weitere Informationen
| Wesentlicher Energieträger | GAS |
| Energieausweis gültig bis | 2029-11-05 |
| Energieausweis Jahrgang | ab dem 1.5.2014 |
| Energieausweis Werteklasse | D |
| Energieausweis Baujahr | 1900 |
| Energieausweis Gebäudeart | Gewerbe |
Ich bin damit einverstanden, dass mir Karten von Google angezeigt werden. Es gelten die Datenschutzbedingungen von Google (https://policies.google.com/privacy).
Ich bin einverstanden