Objektart
Adresse
Objektdaten
Informationen
Ausstattung
Details
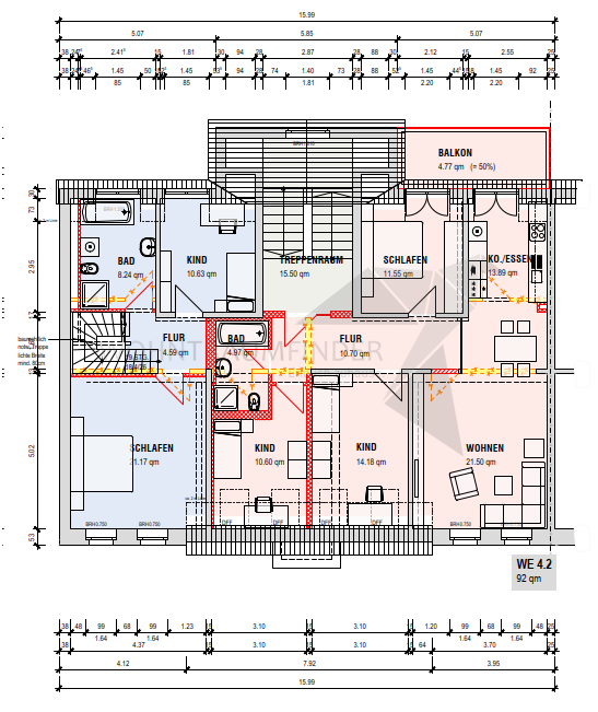
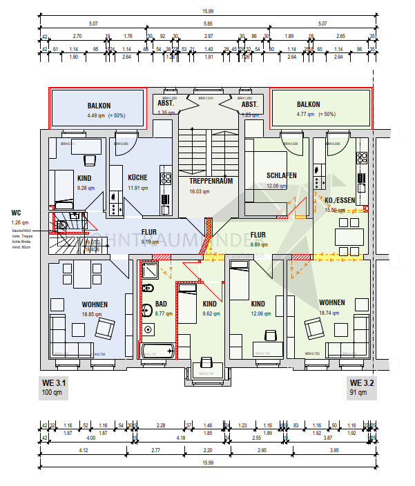
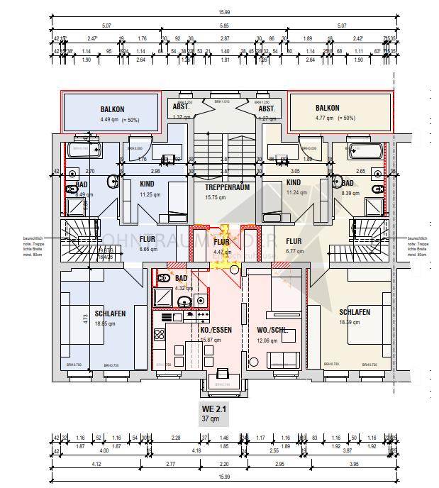
Das um 1905 erbaute denkmalgeschützte Mehrfamilienhaus in halboffener Bebauung verfügt über 4 Etagen. Nach den heutigen Standards und Ansprüchen könnten hier vier exklusive 4 bis 5 Raum Wohnungen (mit Balkon oder Terrasse mit Hausgarten), sowie ein großzügiges 1 Raum Appartement entstehen.
In Rücksprache mit dem benachbarten Eigentümer besteht die Möglichkeit im Innenhof PKW-Stellplätze zu schaffen.
Die Dacheindeckung wurde in Kunstschiefer-Faserzementplatten ausgeführt.
!! Hinweis: Die im Exposé dargestellten Objektbilder im sanierten Zustand wurden KI generiert und dienen lediglich der visualisierten Orientierung der Gebäudefassade. Sie entsprechen nicht dem tatsächlichen Originalzustand !!
!! Hinweis: Die im Exposé dargestellten Objektbilder im sanierten Zustand wurden KI generiert und dienen lediglich der visualisierten Orientierung der Gebäudefassade. Sie entsprechen nicht dem tatsächlichen Originalzustand !!
Haben Sie Fragen zum Objekt, oder wünschen einen persönlichen, unverbindlichen Besichtigungstermin rufen Sie uns unter 0170-4738791 oder 0371-8100077 an oder kontaktieren Sie uns per Mail! Wir stehen Ihnen gern beratend zur Seite.
Alle Angaben wurden nach bestem Wissen gemacht. Irrtümer und Zwischenverkauf vorbehalten. Dieses Exposé ist eine Vorinformation, als Rechtsgrundlage gilt allein der notariell abgeschlossene Kaufvertrag. Dem Verbraucher steht bei außerhalb von Geschäftsräumen geschlossenen Verträgen und bei Fernabsatzverträgen ein Widerrufsrecht gemäß § 355 BGB zu. Bitte beachten Sie unsere Widerrufsbelehrung. Diese finden Sie unter www.wohntraumfinder.com.
Das Gebäude befindet sich im beliebten Chemnitzer Stadtteil Gablenz, im zentrumsnahen Osten von Chemnitz.
In der näheren Umgebung finden Sie vielfältige Einkaufsmöglichkeiten, sowie Schulen und Kindergärten
Durch die sehr gute Verkehrsanbindung mit öffentlichen Verkehrsmitteln der CVAG gelangen Sie schnell in alle Bereich der Stadt. Über den nahegelegenen Südring erreichen Sie in wenigen Fahrminuten die Autobahnen A72 und A4.
Ansprechpartner
Mobil: 00491704738791
info@wohntraumfinder.com
Ich bin damit einverstanden, dass mir Karten von Google angezeigt werden. Es gelten die Datenschutzbedingungen von Google (https://policies.google.com/privacy).
Ich bin einverstanden