Objektart
Adresse
Objektdaten
Informationen
Ausstattung
Details
Bei dem Wohn- und Geschäftshaus handelt es sich um ein Gebäude in der Nähe der Meeraner Innenstadt.
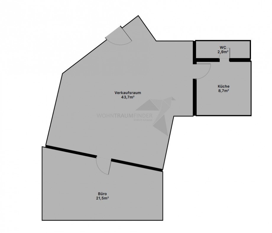
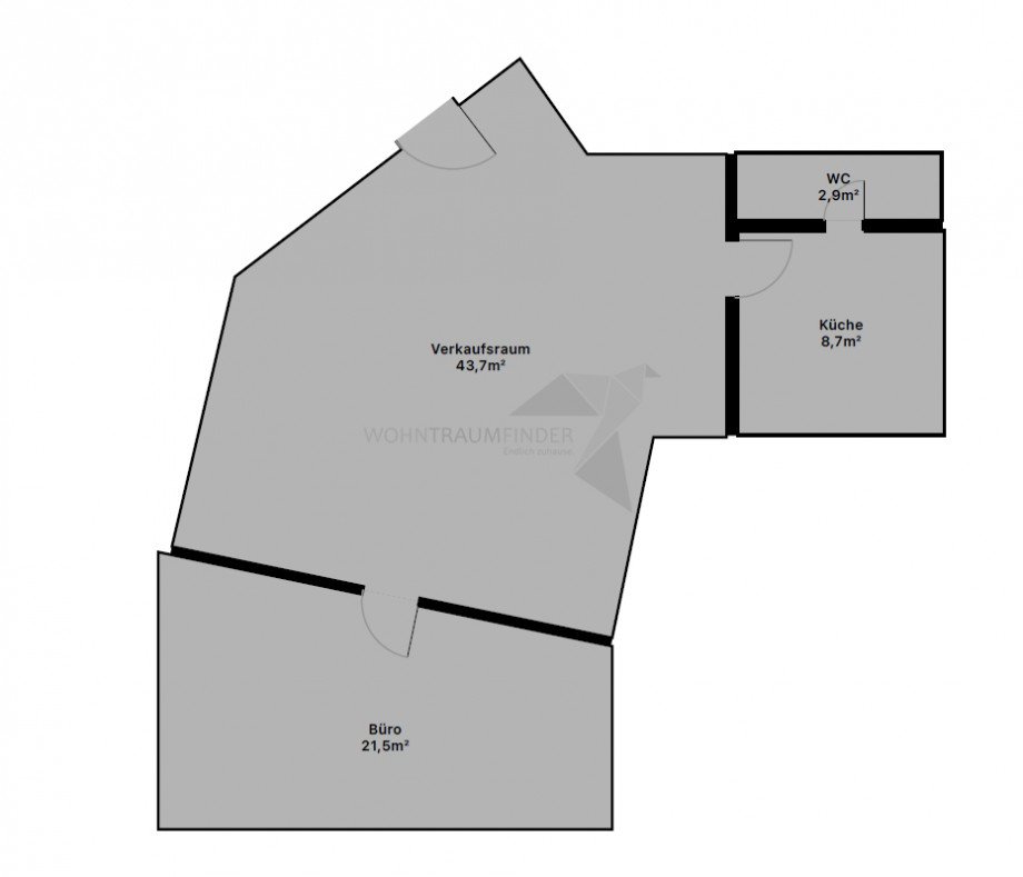
Die Gewerbefläche befindet sich im Erdgeschoss des Gebäudes.
Die ca. 79m² große Gewerbefläche mit großzügiger Verkaufsfläche befindet sich im Erdgeschoss.
- geflieste, ca. 43,7m² große Verkaufsfläche
- geflieste, ca. 21,5m² große Bürofläche
- geflieste, ca. 8,7m² große Küche
- kleines, gefliestes WC
Egal ob Einzelhandelsgeschäft oder Büro - diese Räumlichkeiten bieten Ihnen viele Möglichkeiten.
Mit dem 360° Rundgang können Sie die Gewerbeeinheit bereits vorab virtuell besichtigen,
gern stehen wir Ihnen auch für einen persönlichen Besichtigungstermin zur Verfügung.
ACHTUNG!!! Das Angebot richtet sich an Gewerbetreibende, Freiberufler und Selbstständige !!! - Die Mietpreise im Exposé verstehen sich zuzüglich der gesetzlichen Umsatzsteuer!!!
Alle Angaben wurden nach bestem Wissen gemacht. Irrtümer und Zwischenvermietung vorbehalten. Dieses Exposé ist eine Vorinformation, als Rechtsgrundlage gilt allein der abgeschlossene Mietvertrag. Dem Verbraucher steht bei außerhalb von Geschäftsräumen geschlossenen Verträgen und bei Fernabsatzverträgen ein Widerrufsrecht gemäß § 355 BGB zu. Bitte beachten Sie unsere Widerrufsbelehrung. Diese finden Sie unter www.wohntraumfinder.com.
Gelegen im malerischen Zwickauer Land, ist Meerane für seine grünen Parks, ruhigen Straßen und freundliche Gemeinschaft bekannt. Mit einer Vielzahl von Einkaufsmöglichkeiten, Restaurants und Freizeitaktivitäten ist Meerane der ideale Ort zum Leben und Arbeiten.
Am Rande der Stadt finden Sie zahlreiche Felder und Wälder.
Die Annehmlichkeiten des städtischen Lebens sind nicht weit entfernt, was eine ideale Lage für ein Gewerbe bietet. In wenigen Minuten erreichen Sie das lebendige Stadtzentrum von Meerane mit seinen charmanten Geschäften, gemütlichen Cafés und vielfältigen kulturellen Angeboten.
Für Pendler ist die Autobahn schnell zu erreichen und der nahe gelegene Bahnhof Meerane ermöglicht eine bequeme Anbindung an die umliegenden Städte wie Zwickau und Chemnitz.
Downloads
Links
Energieausweis (Verbrauchsausweis)
111 kWh / (m²*a) Energieverbrauchskennwert
111 kWh / (m²*a) Energieverbrauchskennwert
111 kWh / (m²*a) Energieverbrauchskennwert
Weitere Informationen
| Wesentlicher Energieträger | Erdgas schwer |
| Energieausweis gültig bis | 2027-12-13 |
| Energieausweis Jahrgang | ab dem 1.5.2014 |
| Energieausweis Wärmewert | 111.00 kWh / (m²*a) |
| Energieausweis Werteklasse | D |
| Energieausweis Baujahr | 1996 |
| Energieausweis Gebäudeart | Gewerbe |
Ich bin damit einverstanden, dass mir Karten von Google angezeigt werden. Es gelten die Datenschutzbedingungen von Google (https://policies.google.com/privacy).
Ich bin einverstanden