!! Schnell sein lohnt sich !! Traumhaus mit Doppelgarage, großem Grundstück und Erdwärme
Objektart
Adresse
Objektdaten
Informationen
Ausstattung
Details
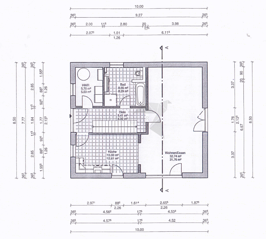
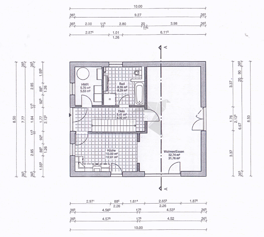
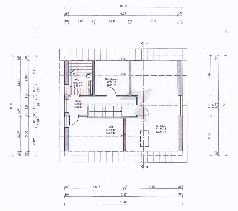
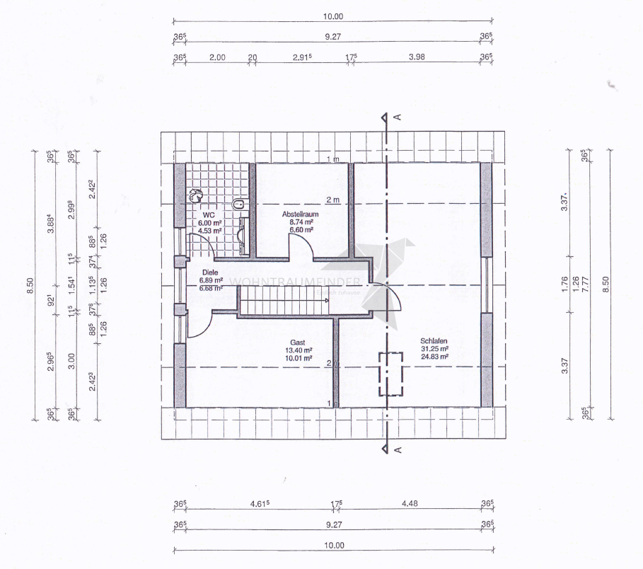
Das im Jahr 2014 massiv errichtete Einfamilienhaus verfügt über ca. 117,18m² Wohnfläche auf zwei Etagen.
Auf dem ca. 920m² großen Grundstück stehen eine Terrasse und ein gepflegter grüner Garten für Entspannung bereit.
Die Doppelgarage fasst zwei PKW-Stellplätze, zudem sorgt eine geräumige Zufahrt für weitere Abstellmöglichkeiten.
Durch hochwertige Wärmedämmung und die Beheizung durch Erdwärme verfügt das Haus über eine tolle Energieeffizienz.
Das Einfamilienhaus bietet 3,5 Zimmer, ein Badezimmer, ein Gäste-WC und eine große Terrasse. Elektrische Außenrollläden, dreifachverglaste Fenster und Fußbodenheizung sorgen für hohen Wohnkomfort.
Für weitere Bilder, Informationen und Ausstattungsmerkmale fordern Sie bitte das Exposé an.
Für einen persönlichen, unverbindlichen Besichtigungstermin stehen wir Ihnen gern zur Verfügung.
Alle Angaben wurden nach bestem Wissen gemacht. Irrtümer und Zwischenverkauf vorbehalten. Dieses Exposé ist eine Vorinformation, als Rechtsgrundlage gilt allein der notariell abgeschlossene Kaufvertrag. Dem Verbraucher steht bei außerhalb von Geschäftsräumen geschlossenen Verträgen und bei Fernabsatzverträgen ein Widerrufsrecht gemäß § 355 BGB zu. Bitte beachten Sie unsere Widerrufsbelehrung. Diese finden Sie unter www.wohntraumfinder.com.
Das hier angebotene Wohnhaus befindet sich in einer verkehrsgünstigen und gleichzeitig ruhigen Lage am Rande von Limbach-Oberfrohna, einer Großen Kreisstadt im Landkreis Zwickau.
Das große gepflegte Grundstück bietet Ihnen viel Platz für Erholung.
In nur wenigen Fahrminuten erreichen Sie Dank der guten Verkehrsanbindung die umliegenden Städte wie z.B. Chemnitz und Zwickau, sowie die Autobahnen A72 (Abfahrt Hartmannsdorf) und A4 (Abfahrt Limbach-Oberfrohna)
In der näheren Umgebung befinden sich alle Geschäfte des täglichen Bedarfs, Restaurants, und medizinische Einrichtungen sowie eine Anbindung zum öffentlichen Nahverkehr. Schulen und Kindertageseinrichtungen sind in wenigen Minuten erreichbar.
Ansprechpartner
Mobil: 00491704738791
info@wohntraumfinder.com
Energieausweis (Verbrauchsausweis)
17,10 kWh / (m²*a) Energieverbrauchskennwert
17,10 kWh / (m²*a) Energieverbrauchskennwert
17,10 kWh / (m²*a) Energieverbrauchskennwert
Weitere Informationen
| Wesentlicher Energieträger | Erdwärme |
| Energieausweis gültig bis | 2036-02-16 |
| Energieausweis Jahrgang | ab dem 1.5.2014 |
| Energieausweis Werteklasse | A+ |
| Energieausweis Baujahr | 2014 |
| Energieausweis Gebäudeart | Wohngebäude |
| Heizung | Zentralheizung |
| Befeuerung | Erdwärme |
Ich bin damit einverstanden, dass mir Karten von Google angezeigt werden. Es gelten die Datenschutzbedingungen von Google (https://policies.google.com/privacy).
Ich bin einverstanden