Tolle 3-Zimmer-Maisonette-Eigentumswohnung mit Balkon und Stellplatz in Chemnitz
Objektart
Adresse
Objektdaten
Informationen
Ausstattung
Details
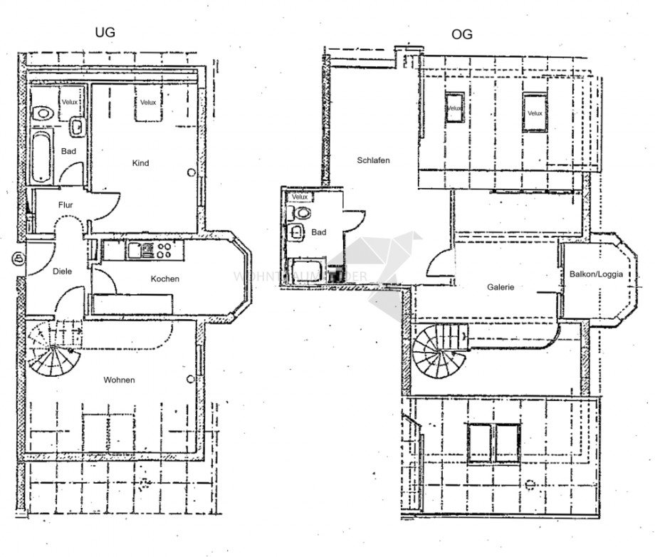
Diese moderne 3-Zimmer-Maisonette-Eigentumswohnung befindet sich in einem gepflegten Mehrfamilienhaus aus dem Baujahr 1995 und überzeugt durch ihre durchdachte Raumaufteilung sowie ihren besonderen Wohncharakter auf zwei Ebenen.
Das Haus umfasst lediglich 8 Wohneinheiten und bildet eine Hauseigentümergemeinschaft mit dem Nachbargebäude (insgesamt 17 Wohneinheiten).
Ein zur Wohnung gehörender PKW-Stellplatz im Außenbereich sowie ein Kellerabteil sorgen für zusätzlichen Komfort.
Das Gemeinschaftseigentum umfasst zudem einen Wasch- und Trockenraum sowie einen Fahrradraum.
Die 3-Raum-Wohnung verfügt über eine Wohnfläche von ca. 84 m², die sich großzügig auf zwei Ebenen verteilt und ein besonderes Wohngefühl im Maisonette-Stil bietet.
Ein sonniger Balkon sowie zwei Badezimmer unterstreichen den hohen Wohnkomfort dieser Einheit. Die Ebenen sind über eine stilvolle Echtholztreppe miteinander verbunden und schaffen eine offene, luftige Atmosphäre.
Ein PKW-Außenstellplatz ist ebenfalls Bestandteil dieses attraktiven Angebots und rundet das Gesamtpaket ab.
Teile der gezeigten Bilder wurden aus Datenschutzgründen mit KI bearbeitet. Es wurden Möbel und private Gegenstände entfernt.
Für weitere Informationen und Ausstattungsmerkmale fordern Sie gerne das Exposé an.
Für einen persönlichen, unverbindlichen Besichtigungstermin stehen wir Ihnen gern zur Verfügung.
Alle Angaben wurden nach bestem Wissen gemacht. Irrtümer und Zwischenverkauf vorbehalten. Dieses Exposé ist eine Vorinformation, als Rechtsgrundlage gilt allein der notariell abgeschlossene Kaufvertrag. Dem Verbraucher steht bei außerhalb von Geschäftsräumen geschlossenen Verträgen und bei Fernabsatzverträgen ein Widerrufsrecht gemäß § 355 BGB zu. Bitte beachten Sie unsere Widerrufsbelehrung. Diese finden Sie unter www.wohntraumfinder.com.
Die Eigentumswohnung befindet sich im beliebten Chemnitzer Stadtteil Siegmar, einer gewachsenen und ruhigen Wohnlage im Westen der Stadt.
Das Wohnumfeld ist geprägt von gepflegten Mehrfamilienhäusern, Einfamilienhäusern sowie viel Grün und bietet eine angenehme, familienfreundliche Atmosphäre.
In unmittelbarer Nähe befinden sich vielfältige Einkaufsmöglichkeiten, darunter Supermärkte, Bäckereien und weitere Geschäfte des täglichen Bedarfs.
Die Verkehrsanbindung ist hervorragend: Über die nahegelegene Autobahn A72 sowie die Bundesstraße B173 besteht eine schnelle Verbindung in die Chemnitzer Innenstadt und in die umliegenden Regionen. Haltestellen des öffentlichen Nahverkehrs sind fußläufig erreichbar und gewährleisten eine bequeme Anbindung auch ohne Auto.
Auch für Familien ist die Lage ideal. Kindertagesstätten, Schulen sowie medizinische Einrichtungen befinden sich in der näheren Umgebung. Zahlreiche Grünflächen, Spazier- und Radwege sowie Freizeitmöglichkeiten sorgen für einen hohen Erholungswert und unterstreichen die hohe Lebensqualität dieses Wohnstandortes.
Ansprechpartner
Mobil: 00491704738791
info@wohntraumfinder.com
Energieausweis (Verbrauchsausweis)
107 kWh / (m²*a) Energieverbrauchskennwert
107 kWh / (m²*a) Energieverbrauchskennwert
107 kWh / (m²*a) Energieverbrauchskennwert
Weitere Informationen
| Wesentlicher Energieträger | Erdgas schwer |
| Energieausweis gültig bis | 2028-07-17 |
| Energieausweis Jahrgang | ab dem 1.5.2014 |
| Energieausweis Werteklasse | D |
| Energieausweis Baujahr | 1995 |
| Energieausweis Gebäudeart | Wohngebäude |
| Heizung | Zentralheizung |
| Befeuerung | Gas |
Ich bin damit einverstanden, dass mir Karten von Google angezeigt werden. Es gelten die Datenschutzbedingungen von Google (https://policies.google.com/privacy).
Ich bin einverstanden