Moderne Doppelhaushälfte inkl. Einbauküche, 2x Stellplatz und weiteren Extras in Chemnitz-Rabenstein
Objektart
Adresse
Objektdaten
Informationen
Ausstattung
Details
Die 2022/23 neu gebaute Doppelhaushälfte befindet sich im beliebten Chemnitzer Stadtteil Rabenstein.
Das modern gestaltete Niedrigenergiehaus mit KfW55 Standard und Luftwärmepumpe verfügt über 2 Außenstellplätze mit einer Wallbox für Ihr Elektroauto.
Zwei großzügige Terrassen mit Gartenanteil sowie Fußbodenheizung, eine sehr hochwertige Ausstattung und weitere Highlights erwarten Sie.
Mit dem 360° Rundgang können Sie ein baugleiches gespiegeltes Haus bereits vorab virtuell besichtigen,
gern stehen wir Ihnen auch für einen persönlichen Besichtigungstermin zur Verfügung.
Die Bilder wurden während der Bauphase aufgenommen und stammen teilweise von den aktuellen Mietern.
Die hier angebotene Doppelhaushälfte mit 2 Stellplätzen und Hausgarten freut sich ab August 2026 auf Sie als neue Mieter, da sie aktuell noch vermietet ist.
!! Die moderne Einbauküche mit hochwertigen Einbaugeräten, sowie die beiden Stellplätze und die Nutzung des Hausgartens sind bereits in der Miete enthalten !!
Ausstattung & Highlights:
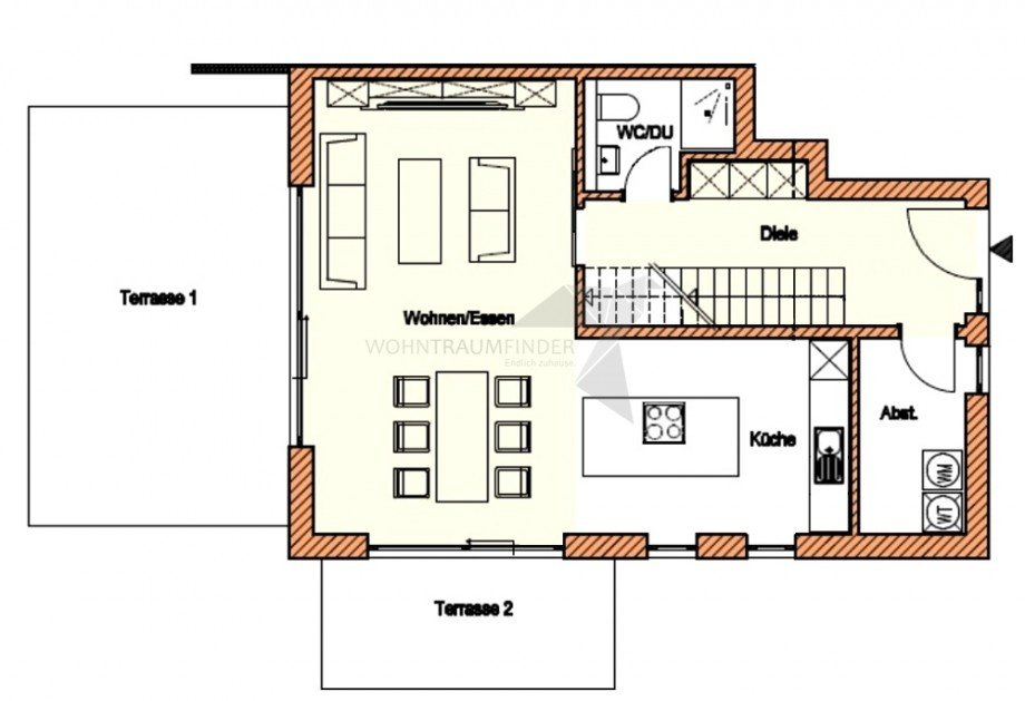
- ca. 134,00m² Gesamtwohnfläche mit 4,5 Zimmern auf 2 Etagen
- 2 sonnige Terrassen über große Hebe-Schiebetüren vom Wohnbereich aus erreichbar
- Fußbodenheizung und smarte Beleuchtung (innen & außen)
- Vinyl-Designbodenbelag in Eichendielenoptik in allen Wohn-und Schlafräumen sowie Fluren
- bodentiefe Fenster mit elektrischen Rollläden und 3-fach Verglasung
- großer Wohn-Essbereich mit offener Küche im EG
- hochwertige Einbauküche mit Kochinsel und Elektrogeräten von Miele und Bora im EG
- geräumiger Eingangsbereich mit Garderoben-Einbauschrank und Echtholztreppe ins OG
- Gäste-Bad mit Dusche im EG
- Hauswirtschaftsraum mit Waschmaschinenanschluss im EG
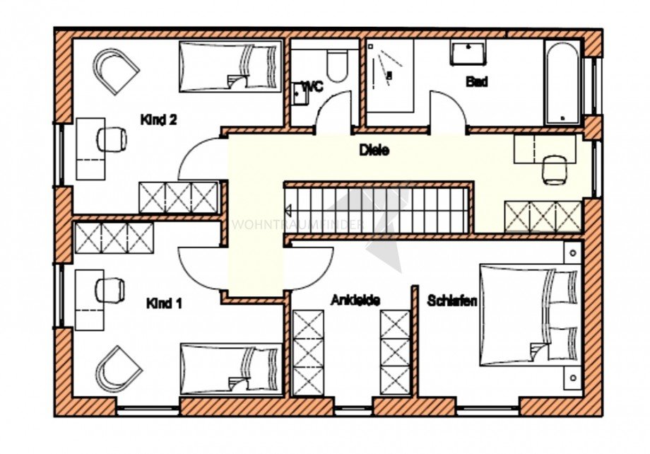
- Masterbad mit XXL Dusche, Wanne und Fenster
- Bäder und WC´s mit beleuchtetem Spiegel und teilweise mit Waschtisch
- separate Toilette im OG
- geräumiges Schlafzimmer mit Ankleide im OG
- 2 gemütliche Kinderzimmer im OG
- Flur mit praktischem Home-Office Bereich im OG
- alle Zimmer verfügen über einen TV- und Netzwerkanschluss (Heimnetzwerk)
- 2 Außenstellplätze für Ihre PKW (ein Stellplatz mit Wallbox)
- liebevoll angelegter Hausgarten mit Außenbeleuchtung
- separater, großzügiger Schuppen für Fahrräder und Gartengeräte
- begrünte Sicht- und Lärmschutzwand zur Oberfrohnaer Straße
Alle Angaben wurden nach bestem Wissen gemacht. Irrtümer und Zwischenvermietung vorbehalten. Dieses Exposé ist eine Vorinformation, als Rechtsgrundlage gilt allein der abgeschlossene Mietvertrag. Dem Verbraucher steht bei außerhalb von Geschäftsräumen geschlossenen Verträgen und bei Fernabsatzverträgen ein Widerrufsrecht gemäß § 355 BGB zu. Bitte beachten Sie unsere Widerrufsbelehrung.
Das Objekt liegt unweit von Wäldern und Grünflächen, die zu Spaziergängen und Wanderungen einladen. Besonders die Burg Rabenstein, der Tierpark mit Restaurant "Pelzmühle" und die "Felsendome Rabenstein" sind attraktive, nahe gelegene Ausflugsziele. Im Sommer ist der Stausee Oberrabenstein ein Magnet für alle "Wasserratten".
In der näheren Umgebung finden Sie sowohl Einkaufsmöglichkeiten (Einzelhandel, Drogerie, Bäcker, Fleischer,...) als auch ärztliche Versorgung (DRK Krankenhaus Rabenstein, Ärztehaus Oberfrohnaer Straße).
Haltestellen des öffentlichen Nahverkehrs sowie die Autobahnen A4 und A72 und die Bundesstraße 173 erreichen Sie in wenigen Minuten.
Ansprechpartner
Mobil: 00491704738791
info@wohntraumfinder.com
Downloads
Links
Energieausweis (Bedarfsausweis)
18 kWh / (m²*a) Endenergiebedarf
18 kWh / (m²*a) Endenergiebedarf
18 kWh / (m²*a) Endenergiebedarf
Weitere Informationen
| Wesentlicher Energieträger | Luft-/Wasser-Wärmepumpe |
| Energieausweis gültig bis | 2032-12-14 |
| Energieausweis Jahrgang | ab dem 1.5.2014 |
| Energieausweis Werteklasse | A+ |
| Energieausweis Baujahr | 2021 |
| Energieausweis Gebäudeart | Wohngebäude |
| Heizung | Zentralheizung, Fußbodenheizung |
| Befeuerung | Luft-/Wasser-Wärmepumpe |
Ich bin damit einverstanden, dass mir Karten von Google angezeigt werden. Es gelten die Datenschutzbedingungen von Google (https://policies.google.com/privacy).
Ich bin einverstanden